2180-9028/6988-9301 (香港) / 170-9880-9301 (中國)
房地產(樓宇及單位)

基本情報

ID
jpp5689
種類
一間
物件名稱
デュオ・スカーラ新大久保
現狀
出租中
價錢
4,690萬円
價錢(港幣)
230萬元
租金收入
152,000円 / 月
回報率
3.89%
淨回報率
3.07%
管理費
13,740円 / 月
修繕積立金
10,000円 / 月
其他費用
-
租貸管理費
8,360円 / 月
地址
東京都 新宿區 大久保2-32-19
交通
JR山手線 新大久保 徒歩 4分
取引様態

建物情報

結構
鐵筋石屎
建造年月
2003年11月
層数
地上5層
所在層
地上 2層
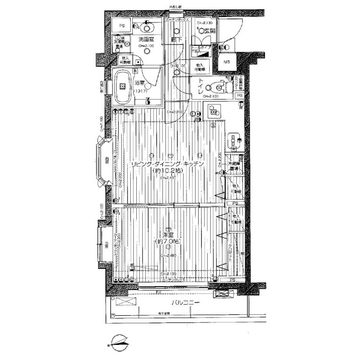
室内面積
44.43㎡
 
 
陽台面積
5.76㎡
陽台方向
西 
平面圖
1LDK

土地情報

面積
登記簿0㎡
土地権利
所有権
都市計画区域
市街化區域
用途地域
備註
8 minutes walk from Okubo Station on the Sobu Line 

 

 

 

 

 

資料請求
物件 No
5689
姓名
電郵地址
聯絡電話
居住地區
職業
想購入日本房地產的原因
查詢内容
*轉下一行
同意事項
是否地產從業員