2180-9028/6988-9301 (香港) / 170-9880-9301 (中國)
房地產(樓宇及單位)

基本情報

ID
jpp5693
種類
一間
物件名稱
La grace NIPPORI
現狀
居住中
價錢
6,227萬円
價錢(港幣)
305萬元
租金收入
0円 / 月
回報率
0%
淨回報率
-0.79%
管理費
27,040円 / 月
修繕積立金
11,280円 / 月
其他費用
-
租貸管理費
2,750円 / 月
地址
東京都 荒川區 東日暮里4-36-27
交通
JR山手線 鶯谷 徒歩 6分
取引様態

建物情報

結構
鐵筋石屎
建造年月
2018年3月
層数
地上7層
所在層
地上 6層
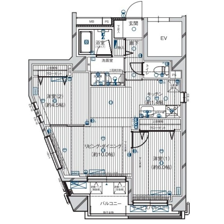
室内面積
54.28㎡
 
 
陽台面積
-
陽台方向
 
平面圖
2LDK

土地情報

面積
登記簿0㎡
土地権利
所有権
都市計画区域
市街化區域
用途地域
準工業地域
備註
※Currently operating as a monthly apartment 

 

 

 

 

 

資料請求
物件 No
5693
姓名
電郵地址
聯絡電話
居住地區
職業
想購入日本房地產的原因
查詢内容
*轉下一行
同意事項
是否地產從業員