Telephone no.: 2180-9028/6988-9301 (Hong Kong) / 170-9880-9301 (China)
PROPERTY(Bldg & Flat)

Basic Information

ID
jpp3183
Type
Studio Flat
Property name
Grand Maison Shirokane no Mori The Tower
Status
Empty
Price
199,800,000 yen
Price(USD)
1,318,680US$
Rental income
0 yen/month
Gross return
0%
Net return
-0.24%
Management fee
21,600yen/month
Maintenance fee
16,200yen/month
Other fee
1,423yen/month
PM fee
0 yen/month
Address
TOKYO TO MINATO KU SHIROKANE6-16-34
Transportation
Tokyo Metro Namboku Line Shirokanedai Walk 10Minutes
Mode of transaction

Property Information

Structure
Reinforced Concrete
Bldg Year
5/2015
Storey
Storey 30 Underground 1
Floor
24F
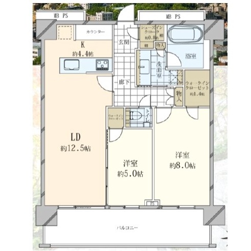
Actual area
69.12㎡
 
 
Balcony area
14.13㎡
Balcony direction
East 
Layout
2LDK

Land Information

Area
0㎡
Land right
Freehold
City planning district
Urbanization area
Use district
category 1 residential districts
Comment
Tokyo Metro Hibiya Line Hiroo Station 13 minutes walk 

 

 

 

 

 

Enquiry
Property No
3183
Name
First  Last
Email address
Phone number
District
Occupation
Purchase reason
Enquiry content
*To Next Line
Agreement
Are you real estate agent?