Telephone no.: 2180-9028/6988-9301 (Hong Kong) / 170-9880-9301 (China)
PROPERTY(Bldg & Flat)

Basic Information

ID
jpp4657
Type
Whole Block
Property name
Leipa Palace Funabori
Status
Rented
Price
105,000,000 yen
Price(USD)
693,000US$
Rental income
423,000 yen/month
Gross return
4.83%
Net return
4.57%
Management fee
-
Maintenance fee
-
Other fee
-
PM fee
23,265 yen/month
Address
TOKYO TO EDOGAWA KU FUNABORI5-15-4
Transportation
Toei Shinjuku Line Funabori Walk 8Minutes
Mode of transaction

Property Information

Structure
Wooden
Bldg Year
10/2022
Storey
Storey 2
Floor
-
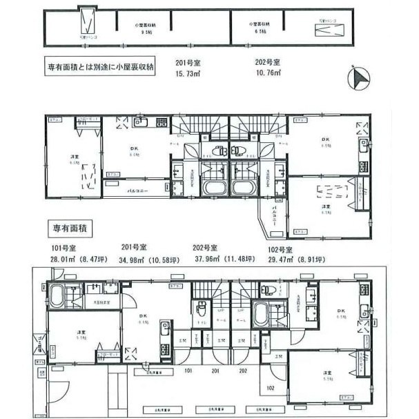
Actual area
128.75㎡
 
 
Balcony area
-
Balcony direction
 
Layout

Land Information

Area
119㎡
Land right
Freehold
City planning district
Urbanization area
Use district
quasi-industrial districts
Comment
Security cameras and auto lock available. 

 

 

 

 

 

Enquiry
Property No
4657
Name
First  Last
Email address
Phone number
District
Occupation
Purchase reason
Enquiry content
*To Next Line
Agreement
Are you real estate agent?