Telephone no.: 2180-9028/6988-9301 (Hong Kong) / 170-9880-9301 (China)
PROPERTY(Bldg & Flat)

Basic Information

ID
jpp5297
Type
Studio Flat
Property name
Reflet Premium Kagurazaka
Status
Rented
Price
69,800,000 yen
Price(USD)
446,720US$
Rental income
223,000 yen/month
Gross return
3.83%
Net return
3.32%
Management fee
11,210yen/month
Maintenance fee
6,350yen/month
Other fee
-
PM fee
12,265 yen/month
Address
TOKYO TO SHINJUKU KU ENOKICHO72-8
Transportation
Tokyo Metro Tozai Line Kagurazaka Walk 6Minutes
Mode of transaction

Property Information

Structure
Reinforced Concrete
Bldg Year
8/2018
Storey
Storey 12
Floor
10F
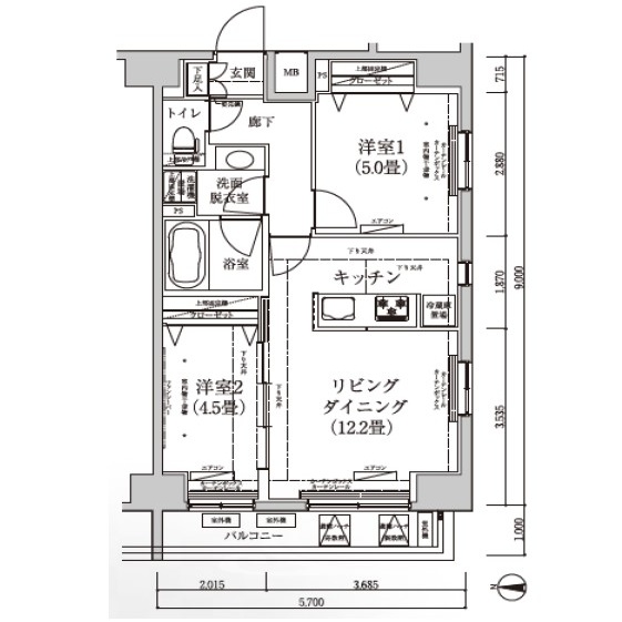
Actual area
51.3㎡
 
 
Balcony area
5.4㎡
Balcony direction
West 
Layout
2LDK

Land Information

Area
0㎡
Land right
Freehold
City planning district
Urbanization area
Use district
commercial districts
Comment
Toei Oedo Line Ushigomeyanagicho Station 10 minutes walk 

 

 

 

 

 

Enquiry
Property No
5297
Name
First  Last
Email address
Phone number
District
Occupation
Purchase reason
Enquiry content
*To Next Line
Agreement
Are you real estate agent?